- 公開日:2023/06/25
- 最終更新日:2026/01/05
CLIENT DATA
- 顧客:
- 医療法人社団鴻愛会
- 屋号:
- ならしの共生クリニック
- 業種:
- クリニック
- 工事種別:
- 内装工事
- 工期:
- 2025.08月~2025.11月
- 坪数(面積):
- 908.73㎡(274.89坪)
- 所在地:
- 千葉県習志野市東習志野6丁目7-8
- TEL:
- 047-411-7878
- 営業時間:
- 9:00〜17:30
- 定休日:
- 日・祝
- WEB:
- https://withlifenarashino.kouaikai.jp
PLAN
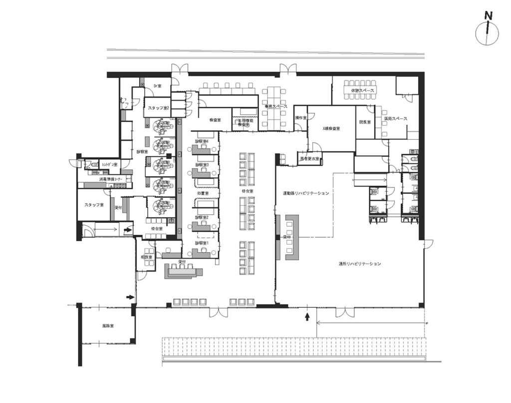
医療と介護の壁を壊し、人とヒトをつなぐ
ならしの共生クリニックの理念「“共に生きる”を、医療でつなぎ、人も街も元気にする」この言葉を、内装の体験設計として具現化した。
受付から診察、リハビリ、デイケアへと連なる空間を一本の曲線照明で統合し、医療と介護、そして人と人のつながりを空間の骨格として表現している。ミッションに掲げる「医療と介護の壁を壊し、人とヒトをつなぐ」という考え方は、ワンルーム状の広がりと連続する天井意匠によって、領域の分断を感じさせない構成へ落とし込んだ。
さらに、緊張を和らげる低彩度の色彩と、待合(静)からリハビリ(動)へ切り替わる光のモードチェンジにより、「治す・予防するを超えて“元気を生み出す医療”」というビジョンを、空間として体感できる場を目指した。

Photography












コメントを投稿するにはログインしてください。